http://gv-idhc5nzmof7zr5.dv.googlehosted.com/
Hotline
05057070566

Zemin Betonlu 158 m² Dubleks Prefabrik Bina | Hakediş Sistemi – Kon Prefabrik

Zemin Betonlu 158 m² Dubleks Prefabrik Bina | Hakediş Sistemi – Kon Prefabrik
Zemin Betonlu 158 m² Dubleks Prefabrik Bina | Hakediş Sistemi – Kon Prefabrik
Zemin Betonlu 158 m² Dubleks Prefabrik Bina | Hakediş Sistemi – Kon Prefabrik
Zemin Betonlu 158 m² Dubleks Prefabrik Bina | Hakediş Sistemi – Kon Prefabrik

Zemin Betonlu 158 m² Dubleks Prefabrik Bina | Hakediş Sistemi – Kon Prefabrik

  • 2.350.00 TL

Zemin Betonlu 158 m² Dubleks Prefabrik Bina | Hakediş Sistemi – Kon Prefabrik 158 m² dubleks prefabrik bina modelleri, geniş aileler ve yüksek yaşam konforu arayan kullanıcılar ... Devamı

Takip Edin:

Açıklama

Zemin Betonlu 158 m² Dubleks Prefabrik Bina | Hakediş Sistemi – Kon Prefabrik

158 m² dubleks prefabrik bina modelleri, geniş aileler ve yüksek yaşam konforu arayan kullanıcılar için tasarlanmış, iki katlı mimarisi ve ferah iç hacmi ile öne çıkan prefabrik bina çözümleri arasında yer almaktadır. Alt ve üst kat ayrımı sayesinde yaşam alanları daha düzenli, konforlu ve fonksiyonel hâle gelir.

Kon Prefabrik tarafından üretilen 158 m² dubleks prefabrik binalar, modern üretim teknolojileri, yüksek kaliteli malzeme kullanımı ve dayanıklı çelik konstrüksiyon altyapısı ile uzun yıllar güvenle kullanılabilecek şekilde tasarlanmaktadır. Geniş salon alanları, dengeli oda dağılımı ve estetik mimari detaylar, aile yaşamını üst seviyeye taşır.

158 m² Dubleks Prefabrik Bina Nedir?

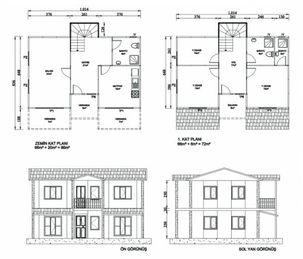
158 m² dubleks prefabrik bina; yapı elemanlarının fabrikada kontrollü ortamlarda üretilip, önceden hazırlanan zemin betonu üzerine kısa sürede kurulduğu iki katlı prefabrik yapı sistemidir. Bu yapı modeli, klasik tek katlı yapılara göre alan kullanımını çok daha verimli ve fonksiyonel hâle getirir.

Genellikle alt katta geniş bir salon, mutfak, banyo ve giriş alanı; üst katta ise yatak odaları, ebeveyn odası, çocuk odaları ve ek banyo alanları yer alır. Bu planlama, ortak yaşam alanları ile özel kullanım alanlarını net biçimde ayırır.

Zemin Betonu Süreci

Zemin betonu, dubleks prefabrik binalarda taşıyıcı sistemin sağlıklı çalışması ve yapının uzun ömürlü olması açısından kritik bir aşamadır. Kon Prefabrik olarak 158 m² dubleks prefabrik bina projelerinde zemin betonu sürecini arsanın zemin yapısına ve proje detaylarına göre titizlikle planlamaktayız.

Zemin betonu aşaması, yapı kurulumundan önce kontrollü bir şekilde gerçekleştirilir ve hakediş sistemi kapsamında şeffaf olarak yürütülür. Bu sayede müşterilerimiz süreci yerinde görerek adım adım takip edebilir.

Türkiye’de Bir İlk: Hakediş Sistemi ile Dubleks Prefabrik Bina

Kon Prefabrik’i sektörde güvenilir ve ayrıcalıklı kılan en önemli özelliklerden biri, Türkiye’de bir ilk olarak uygulamaya alınan hakediş sistemi ile prefabrik bina satış modelidir. Bu sistem sayesinde müşterilerimiz, yüksek peşinatlar ödemeden, yapılan iş oranında ödeme yaparak güvenli bir şekilde dubleks prefabrik bina sahibi olur.

Hakediş sistemi, ödeme sürecinin planlı, kontrollü ve şeffaf ilerlemesini sağlar. Aşamalı ödeme modeli, dubleks prefabrik bina satın alma sürecini hem güvenli hem de sürdürülebilir hâle getirir.

158 m² Dubleks Prefabrik Bina Hakediş Ödeme Planı

  • %10 – Sözleşme imzalanırken
  • %20 – Zemin betonu atımı sırasında
  • %30 – Beton tamamlanıp malzeme üretimine geçildiğinde
  • %10 – Kurulum süreci başladığında
  • %20 – İç imalatlar (fayans, parke, mutfak dolabı) sırasında
  • %10 – Tüm işlerin tamamlanmasının ardından

158 m² Dubleks Prefabrik Bina Fiyatları

158 m² dubleks prefabrik bina fiyatları; kullanılacak malzeme kalitesi, iç donanım seçenekleri, kat planı, çatı sistemi, dış cephe kaplaması, arsa durumu ve teslim süresine göre değişiklik gösterebilir. Bu nedenle net fiyat bilgisi, proje detayları doğrultusunda belirlenmektedir.

Kon Prefabrik olarak her projede müşterilerimize özel çözümler sunuyor, fiyat–performans dengesi yüksek, uzun ömürlü ve güvenli dubleks prefabrik bina projeleri üretiyoruz.

Anahtar Teslim 158 m² Dubleks Prefabrik Bina

158 m² dubleks prefabrik bina projelerimiz anahtar teslim olarak sunulmaktadır. Üretimden kuruluma, montajdan teslimata kadar tüm süreçler Kon Prefabrik uzman ekipleri tarafından titizlikle yürütülmektedir.

Zemin betonlu ve hakediş sistemi ile sunulan 158 m² dubleks prefabrik binalar, güvenli ödeme modeli ve kaliteli işçilik anlayışı ile Kon Prefabrik güvencesini yansıtmaktadır.

Detaylı Bilgi ve Güncel Fiyat

158 m² dubleks prefabrik bina için güncel fiyat, hakediş ödeme planı ve teslim süresi hakkında detaylı bilgi almak için bizimle WhatsApp üzerinden iletişime geçebilirsiniz.

WhatsApp’tan yazın: 0505 141 31 61

İndirelibilir Dosyalar

Sipariş Formu

Bilgi Talep Formu